Kolgrill Park FA Serie
Tuotekuvaus
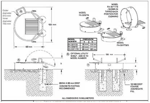
Kolgrill ring - Robust och vandalsäker rund parkgrill med justerbart galler
Information
ROBUST, stöld och vandalbeständig eldstad med grillgaller i värmebeständigt svart lackerat stål.
Grillgallret kan justeras steglöst i höjd eller lutas bakåt från eldstaden, så att ett stort och säkert eldområde erhålls.
Grill- och eldstaden är gjord av mycket starkt stöldskydd- och vandalfasta material. Grillgallret är tillverkat av 13 mm massivt rundjärn och mäter 46 × 39 cm. Den runda hörnringen är tillverkad av 4,5 mm stålplåt.
Bålplatsen är fastsatt på marken med hjälp av 2 konsoler som är gjutna fast vilket minskar stöldrisken. Hängarna fungerar samtidigt som gångjärn, eftersom bålplatsen helt enkelt lutas när askan ska tas bort.
FA-serien kännetecknas också av avsaknaden av lösa eller avtagbara delar.
Denna grillplats är särskilt lämplig för offentliga parker, skolor, campingplatser.